平屋の注文住宅を広島で建てるならトータテハウジングへ
平屋でも実現できるゆとりの広さがあります。
平屋×天井高の開放空間。
暮らし方や生き方が変わり、人々の生活がミニマルになった現代。家への想いは大きさや贅沢さよりも普段の生活に寄り添いながら、家族のつながりや豊かな時間を愉しめるワンフロアの平屋傾向へ。だからトータテハウジングは考えました。
市街地での平屋暮らしを諦めていた方、限られた土地でも庭の広い平屋に暮らしたい、そんなさまざな理想を叶える自由なデザインでお気に入りの平屋生活を提案します。

コンパクトなのに広びろと暮らせる知恵とアイデアと技術があります。
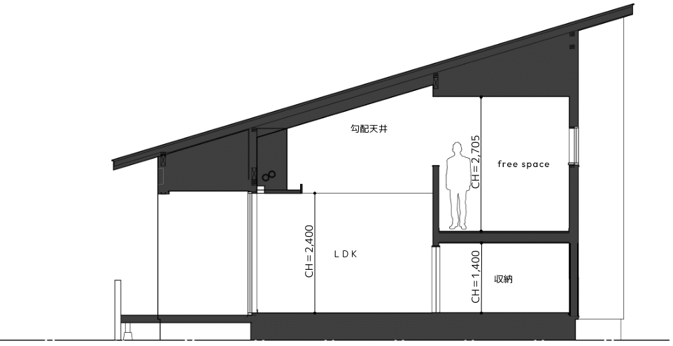
伸びやかな高天井で大容量の
収納スペースを確保。
2階フロアのない平屋は天井を高くできるので、スキップフロアやロフトなどを設けて大容量の収納スペースをつくることも可能です。収納としてだけでなく、ワークスペースやお子さまのプレイルームなど、アイデア次第でマルチに使えます。
住みたいエリアに
お気に入りのStyleで暮らす。
床面積を最大に利用して空間を有効に生かしたワンフロアのデザインは、市街地エリアのコンパクトな土地での平屋を諦めていた方や、平均的な住宅地にも庭を広く確保したいという方など、住みたいエリアで、暮らしたいStyleの平屋生活を実現します。
四季を身近に感じる
癒やしの住空間。
平屋は、基本的にリビングもプライベートルームもすべての空間がフラットです。屋内のリビングから窓を通して、屋外の自然や光と風と一体感の趣が、ゆったりとした心癒される時間が流れていきます。
スムーズな家事動線で忙しい
家族にもうれしい時短。
ワンフロアで全ての生活と家事が完結するため、家事動線がスムーズになり、効率的に家事を行うことができます。洗濯や掃除、料理など、すべての作業が近い距離で行えるため、時間と労力の節約になります。
水平視線で目が届くから
子育て世代にも安心です。
平屋は家族が同じワンフロアにいることで常に家族の気配を感じられる安心感があります。視線が抜けやすく、実際より広く感じられることはもちろん、炊事をしながらでもお子さまの行動を見守れるから安心です。
あらゆる世代に安心な
バリアフリー住宅にも。
最大のメリットはあらゆる世代に、あらゆるライフステージに安心して快適に住み続けられることです。共働き、子育て、やがて階段の利用が辛くなる世代になっても安心、安全、快適に暮らすことができます。
土地の広さに関係なく、狭くても快適な平屋をつくります。
「平屋は広大な土地がないと建てられない」「交通の便の良い市街地エリアに建てたいけど広い土地がない」と思われがちですが、実はそんなことはありません。土地が狭いからという理由で平屋を諦めてしまうのはもったいないです!平屋をイメージする時、2階建て住宅の2倍の土地が必要と考えてしまうからです。
例えば30坪(1階・2階それぞれ15坪)の2階建て。平屋住宅の特徴は、階段、上り口、2階のトイレや廊下などのスペースを省略できるため、約5坪の空間を節約できる点です。これにより、限られた約30坪の面積でも、2階建てと比較して有効面積が増え、より効率的なプランニングが可能となります。天井を高くして空間的な広がりをもたせ、アイデアと技術で収納スペースの問題も解決。これまでの平屋の概念を打ち砕き、新しい暮らしのあり方に寄り添ったミニマルな平屋Styleデザインを提案していきます。
平屋は自由度が高く、暮らしのスタイルにあわせて
間取りプランをデザインします。
平屋は上に2階がない分、間取りの自由度が高いのがメリットです。マンションと同じワンフロアのフラットな住まいですが、柱の数や壁の位置などの構造上の制限が少なく、ルールに縛られることなく自由な設計が可能です。
平屋住宅は2階がないため、上方向の空間を活用して開放的な空間を演出することができ、天井から自然光を取り入れることも可能です。1階だけの間取りは制限されるのではと思われがちですが、実際には階段などのスペースが不要なため、無駄のない効率的なレイアウトが実現します。平屋だからこそ叶う快適な住まいが意外に多いのです。
上下の移動がないフラットな空間構成の平屋住宅は、生活動線がスムーズで誰にでも利用しやすい点が大きな魅力。出産や子育て、介護など、さまざまなライフステージにおいても、全世代にわたって長く快適に暮らせるユニバーサルデザインの家と言えるでしょう。さまざまな暮らしのスタイルにあわせて、間取りプランを提案します。
平屋 参考プラン
南入り3LDK:建物面積/66.22m2(20.03坪)ぜひ、実際のHIRAYAを
ご体感ください。
プレディアステージ温品
※販売状況によりご見学いただけない場合がございます。
あらかじめご了承ください。